

une place de partage
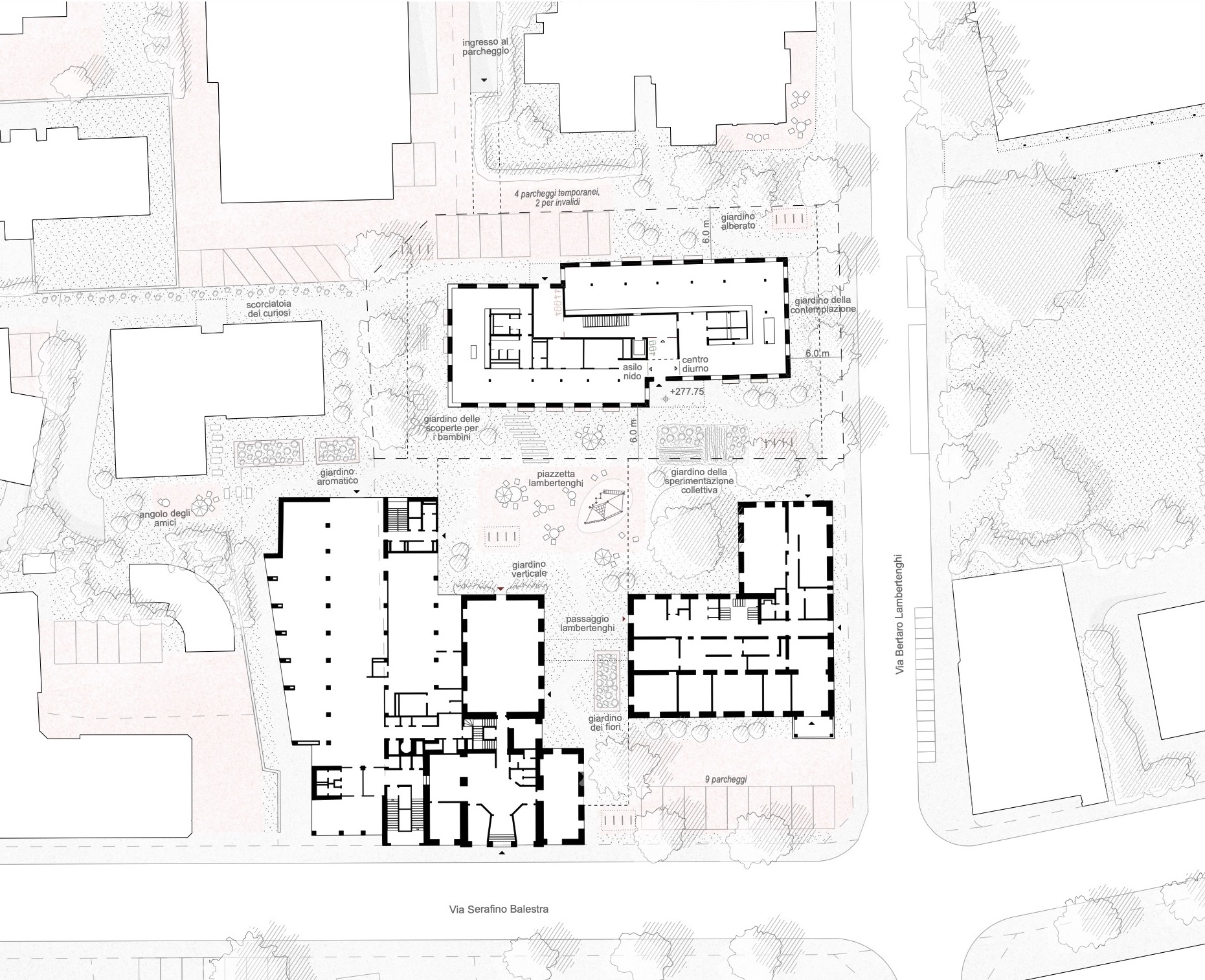
Un morceau de ville composé d’une juxtaposition de bâtiments de différentes époques et styles caractérise le site de réflexion du concours. Les constructions, implantées au centre de leur parcelle dans un environnement minéral souvent cloisonné, réussissent néanmoins à créer une certaine unité dans le quartier. L’implantation d’un nouveau bâtiment à la place d’une halle en bois existante, donne l’opportunité d’induire de nouvelles relations avec le contexte général, d’imaginer des perméabilités à travers l’entier du site et de proposer une généreuse végétalisation à l’usage de tous.
travailler ensemble
Dans un contexte urbain, rares sont les occasions d’intervenir dans un site vierge de construction. Les bâtiments existants dictent la vision de la construction. La volonté est de réutiliser dans la mesure du possible les matériaux présents sur le site. En dépit de sa valeur patrimoniale peu avérée, la halle existante est représentative d’une certaine identité du site, en termes de couleurs, de matérialité. Dans une volonté d’économie circulaire autant que de vision participative socialement intéressante, nous imaginons que des parties de la charpente sont démontées et débitées pour être réemployées dans les éléments de parement de façade, d’aménagements extérieurs, de jeux d’enfants Les matériaux d’excavation sont intégrés dans la fabrication de briques de terre crue. Les pavés des chemins sont réutilisés en pavés herbés perméables pour les zones de stationnement véhicules et vélos.
un dispositif ouvert
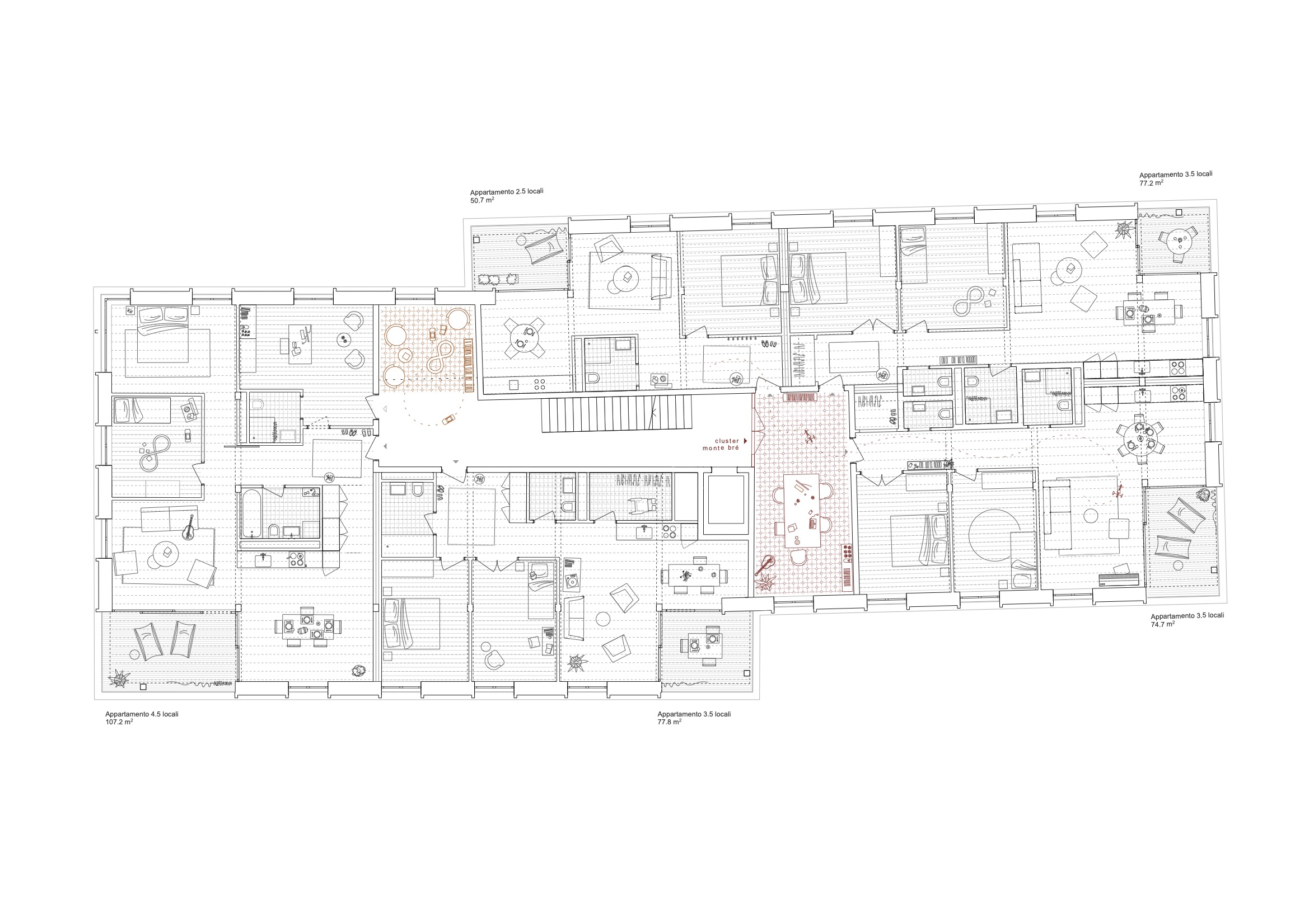
Dans la continuité de la vision urbaine, qui se veut centralisatrice, le nouvel immeuble se compose de deux parties en L étirées qui font place à un cœur central structurant en Z, qui va chercher la lumière naturelle en façade. Celui-ci articule horizontalement et verticalement l’ensemble des programmes de l’immeuble. Les parties publiques telles que la garderie d’enfants et le CAT prennent place au rez-de-chaussée. Leurs accès sont aisés et centralisés. L’accès aux appartements se fait par une distribution verticale aux étages. Le premier étage dispose d’un statut particulier qui favorise la mixité des usages, puisqu’il accueille une partie du centre diurne avec ses salles polyvalentes et sa terrasse, un local intergénérationnel partagé, les buanderies communes de l’immeuble avec leur extension extérieure ainsi que deux appartements qui s’ouvrent vers le Monte Bre. Les étages 2, 3 et 4 accueillent chacun 5 appartements, tout en présentant une flexibilité spécifique qui les distinguent. Les parties de palier s’ouvrant sur les façades deviennent de véritables pièces supplémentaires aménageables selon les besoins et qui peuvent varier selon les usages et la temporalité. Des clusters, des colocations, des appartements pour familles recomposées peuvent être ainsi créés au gré des besoins. A l’étage 5, 2 appartements d’attique côtoient la salle commune qui s’ouvre sur une grande terrasse richement plantée et aménagée avec ruches et potagers.
de terre et de bois
Le principe structurel proposé met à l’œuvre une construction majoritairement en bois constitué de poteaux / poutres avec une trame structurelle réduite afin de réduire les sections et la matière employée. C’est une structure simple utilisant des matériaux écologiquement durables et traditionnels.
Les dalles sont réalisées en structure mixte composée de poutres en bois et d’un plancher en béton armé. La trame structurelle des poutres apparentes exprime une adéquation efficace avec la partition spatiale. La trame et la dimension des poutres secondaires sont en cohérence avec le système structurel et caractère architectural recherché.
Les constructions souterraines et la cage d’escalier/ascenseur sont réalisées en béton armé recyclé afin de garantir la stabilité horizontale et la résistance parasismique du bâtiment.
À l’intérieur de la structure en bois, les parois non porteuses sont réalisées en brique de terre crue. Ce choix est mu par une volonté d’utiliser les matériaux d’excavation pour la fabrication de ces briques. De plus la fabrication des briques est une opportunité de faire participer les acteurs sociaux présents sur le site dans le but de créer une communauté d’utilisateurs engagés autour du projet. Ce matériau est utilisé en apparent pour son caractère naturel ou enduit selon les besoins.
La façade est également construite en bois. Les éléments pleins en bois alternent avec les fenêtres toute hauteur. Des ouvrants à la française tout en permettant un éclairage optimal offrent une utilisation et un rapport généreux avec l’extérieur. Dans les angles, les loggias bénéficient de larges baies vitrées et s’ouvrent vers des dégagements divers.
* * *
un luogo di condivisione
Un pezzo di città costituito da una giustapposizione di edifici di epoche e stili diversi caratterizza il sito di riflessione del concorso. Le costruzioni, situate al centro del loro comparto in un ambiente minerale spesso partizionato, riescono comunque a creare una certa unità nel quartiere. L’installazione di un nuovo edificio al posto di una pensilina in legno esistente offre l’opportunità di instaurare nuove relazioni con il contesto generale, di immaginare permeabilità attraverso l’intero sito e di proporre una vegetazione generosa a disposizione della comunità.
lavorare insieme
In un contesto urbano, le opportunità di intervenire in un sito non edificato sono poche. Gli edifici esistenti dettano la visione della costruzione. L’intenzione è quella di riutilizzare il più possibile i materiali presenti nel sito. Nonostante il suo scarso valore patrimoniale, la pensilina esistente è rappresentativa di una certa identità del sito, in termini di colore e materialità. Nel perseguimento di un’economia circolare e di una visione partecipativa interessante dal punto di vista sociale e solidale, immaginiamo che parti della struttura vengano smontate e ritagliate per essere riutilizzate in diversi elementi come le travi, il rivestimento della facciata, gli arredi esterni e i giochi per bambini. Il materiale scavato viene utilizzato per produrre mattoni di terra compressa. I ciottoli di pavimentazione vengono riutilizzate come pavimentazione erbosa permeabile per le aree di parcheggio dei veicoli e delle biciclette.
un sistema aperto
In coerenza con la visione urbanistica, che vuole essere centralizzante, il nuovo edificio è composto da due parti allungate a forma di L che lasciano spazio a un nucleo centrale strutturante a forma di Z, che ricerca la luce naturale dalla facciata. Questo nucleo articola tutti i programmi dell’edificio in senso orizzontale e verticale. Le parti pubbliche, quali l’asilo nido e parte del centro diurno, si trovano al piano terra. Il loro accesso è facile e centralizzato. Gli appartamenti sono accessibili attraverso una distribuzione verticale ai piani superiori.
Il primo piano ha uno status particolare che favorisce l’uso misto, poiché ospita una parte del centro diurno con le sue sale polivalenti e la sua terrazza, un locale intergenerazionale condiviso, le lavanderie comuni dell’edificio con la loro estensione esterna, nonché due appartamenti che si aprono sul Monte Bré. I piani 2, 3 e 4 ospitano ciascuno 5 appartamenti, ma con una specifica flessibilità che li contraddistingue. Le parti dei pianerottoli che si aprono sulle facciate diventano vere e proprie stanze aggiuntive che possono essere convertite in base alle esigenze e che possono variare a seconda dell’uso e della temporalità. In questo modo è possibile creare cluster, appartamenti condivisi e appartamenti per famiglie allargate in base alle esigenze. Al quinto piano, due appartamenti ad attico si trovano accanto alla sala comune, che si apre su un’ampia terrazza comune, arricchita da zone verdi e casette per le api.
Nella disposizione attuale il progetto prevede 20 appartamenti: 5x 2.5 locali (25%), 12x 3.5 locali (60%), 3x 4.5 locali (15%).
di terra e di legno
Il principio strutturale proposto prevede una costruzione prevalentemente a pali e travi in legno con una griglia strutturale ridotta per ridurre la sezione trasversale e il materiale utilizzato. Si tratta di una struttura semplice che utilizza materiali ecologicamente sostenibili e tradizionali.
Le solette sono costituite da una struttura mista di travi in legno e da un pavimento in cemento armato. La griglia strutturale delle travi a vista esprime un’efficace corrispondenza con la partizione spaziale. La griglia e le dimensioni delle travi secondarie sono coerenti con il sistema strutturale e il carattere architettonico ricercato.
Le costruzioni interrate e il vano scala/ascensore sono realizzati in cemento armato riciclato per garantire la stabilità orizzontale e la resistenza sismica dell’edificio.
All’interno della struttura in legno, le pareti non portanti sono realizzate in mattoni di terra cruda. Questa scelta è motivata dalla volontà di utilizzare i materiali di scavo per la produzione di questi mattoni. Inoltre, la fabbricazione dei mattoni è un’opportunità per coinvolgere gli attori sociali presenti sul sito con l’obiettivo di creare una comunità di utenti impegnati intorno al progetto. Questo materiale viene utilizzato a vista per il suo carattere naturale o rivestito a seconda delle esigenze. La sua capacità intrinseca di assorbire l’umidità e regolare l’igrometria degli ambienti lo rende un apporto sano e ideale per gli interni delle strutture in legno.
La facciata è anch’essa costruita in legno. Elementi in legno pieni si alternano a finestre a tutta altezza. Le porte-finestre, oltre a consentire un’illuminazione ottimale, offrono un uso e un rapporto generoso con l’esterno. Le logge agli angoli sono dotate di grandi finestre e si aprono su diverse viste.