
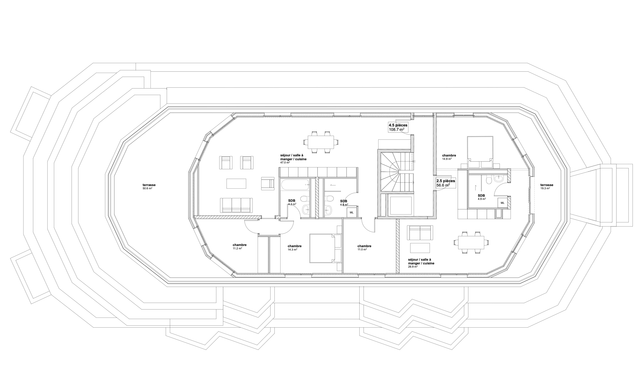
Ce mandat d’étude a pour objet la rénovation de l’immeuble de l’Avenue de Marcelin 23 et 25 à Morges. Le bâtiment a été construit en 1982. Il se développe sur 8 étages dont l’un est semi enterré et se caractérise par des retraits d’attiques sur les 3 derniers niveaux.
Sur la base d’un diagnostic défini à partir des documents reçus et de plusieurs visites sur le site, la proposition est traitée sous trois axes d’intervention impliquant l’analyse de l’existant et la mise en conformité réglementaire du bâtiment, son assainissement énergétique, et une réflexion sur l’habitabilité et la densification de celui-ci.
Les principaux objectifs du projet sont les suivants :
Les bâtiments compris à l’intérieur de l’addenda au PQ “Petit-Dezaley” de 1979 présentent un caractère architectural particulier. Œuvre de l’architecte Jean Serex et bâtis en 1982, ces bâtiments offrent une géométrie particulière en plan et en élévation. Le bâtiment de la parcelle 1561, plus radical que celui de la parcelle 1562 est affublé du nom de “la banane” qui renvoie à sa forme arquée cassant l’angle de l’avenue du Delay. Une succession de retraits d’attique sur ses deux pignons, librement interprétée du règlement du PQ renforce son identité. Ce bâtiment, recensé mais non évalué, ne bénéficie d’aucune mesure de protection. Le bâtiment de la parcelle 1562, objet de la présente étude, n’est quant à lui pas recensé.